Vitra 圣保罗零售店:Volume B

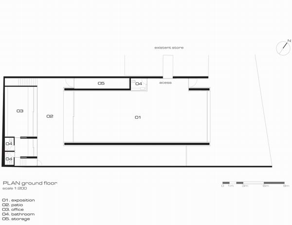
Volume B 是 Vitra 在巴西圣保罗的零售店,由 Marcio Kogan 设计,2007年建成。设计非常简洁,始终围绕着“原始、质朴、粗糙……”,比如没有处理的混凝土表面,店面后办公室的钢筋网格架,内壁也保留了材料的原始特性,甚至也保留了工人建造过程中留在墙上的粉笔记号。








这种手法已很常见,或者说有时成为矫饰的一个符号,但 Volume B 有特色的是它里面装的是 Vitra 的东西。
更多图片:Arch Daily
Hi-iD | 2008.08.05 | 建筑空间





