五角大楼911纪念地

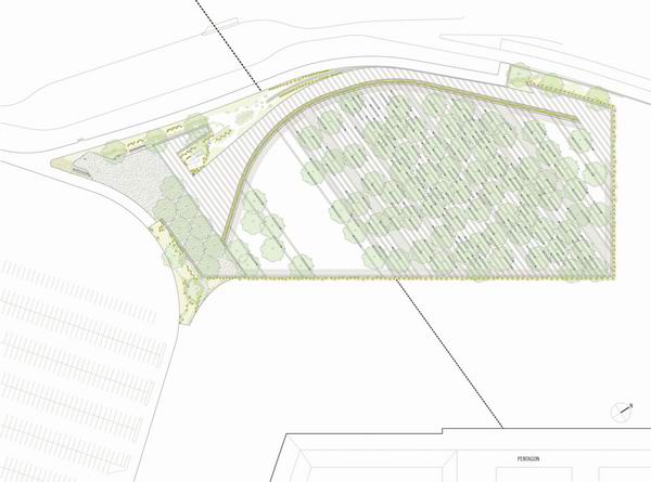
在911恐怖袭击中,一架美国航空公司 Flight 77 航班的波音767飞机撞击了五角大楼,造成184人遇难,Pentagon Memorial(五角大楼纪念地)位于五角大楼的西南角,为纪念这次袭击中184位遇难者而建,这个永久性的户外纪念地在911袭击事件后7年向公众开放,美国总统布什参加了开馆纪念仪式。
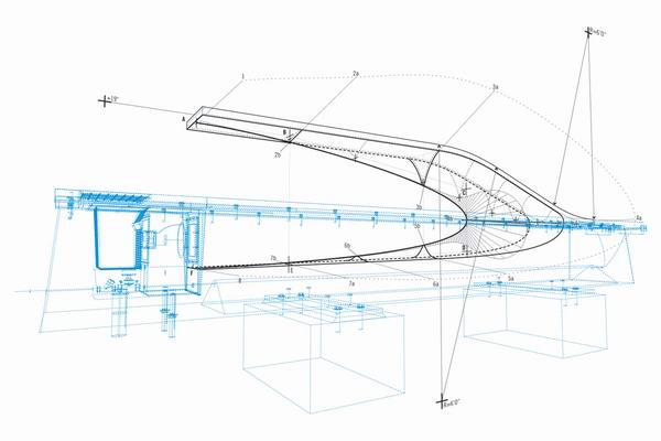
Pentagon Memorial(五角大楼纪念地)由 KBAS Studio 设计,KBAS Studio 与遇难的家庭紧密合作,纪念地从2006年7月15号开始建设,今天即美国时间2008年9月11号投入使用并向公众开放。为纪念这184位遇难者,184条能被照亮的长凳,按照年龄(从3岁到71岁)在1.93英亩(7800平方米)的场地上依次排开,每一条长凳上雕刻有遇难者的名字,五角大楼内遇难者的名字经过排列,当人们阅读这些名字的时候,面对的是五角大楼的南面即撞击事件的发生地,飞机上的遇难者的名字经过排列,当人们阅读这些名字的时候,面对的是飞机撞击前的天空,纪念地上种植有大约80棵的血皮枫。






每一个纪念单元的长凳,通过CNC制作的木模,然后用不锈钢铸造而成,名字雕刻在悬臂的末端,悬臂下是一条流淌的小河,当夜晚时它会会发出寂静的光芒。场地上的砂石地让人们可以听见彼此的脚步声,同时也让种植的树木不需要其他保护栅栏而自然生长,在将来它们会提供遮阴地,同时它们掉落的树皮将见证着时间的流逝。










(via:archdaily)
Hi-iD | 2008.09.12 | 建筑空间





