House Müller Gritsch

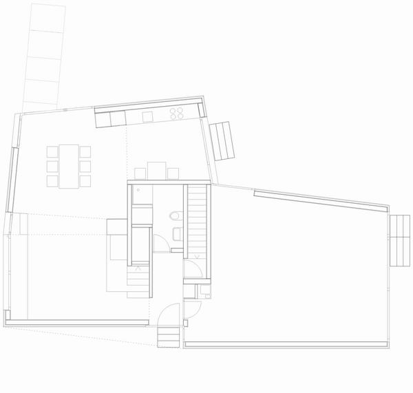
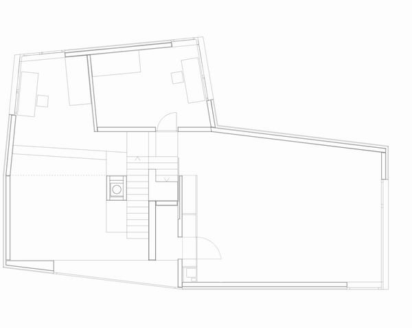
House Müller Gritsch 是一对艺术家夫妇 Barbara Müller 和 Stefan Gritsch 位于瑞士 Lenzburg 的住宅,设计来自 AFGH,建筑面积232平方,因预算限制,采用木板预制建造并在搭建原有的地基上,朴素的设计和多样的空间满足艺术家所需的功能(在家呆的时间多),远离现代生活中人们对虚华的追求,更专注于内容和本质。















更多图见这。(via:FFFFOUND!)
AFGH ( 即Andreas Fuhrimann and Gabrielle Hächler )擅长混凝土建筑,Wallpaper 上有他们最新的一个住宅设计介绍,AFGH holiday house, Switzerland。
Hi-iD | 2008.08.14 | 建筑空间





